Name:Construction Pre-stress Dynamometer
Model:CLY series Construction Pre-stress Dynamometer
Capacity:
Blueprint: Look over>>
Detail:
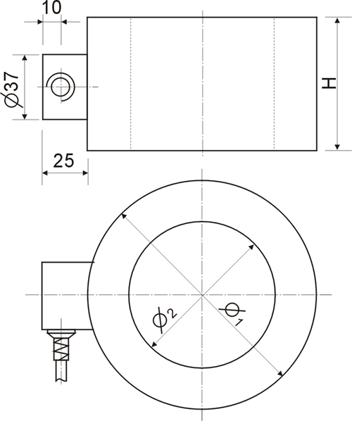
Portable Construction pre-stress dynamometer is used to monitor the tension force or anchor force caused by pre-stress in building constructions.
It is composed of a dynamometer load cell and an indicator. The whole system is simple to install and easy to operate.
The size of load cell makes it easy to be used with varies anchors.


Hotline:08620-36453501
Your location:
